A.B.S.
Pelletsilo Flexilo Mini with sucking pot/snail box
Normal priceAway 695,63 €Basic priceNot availableLimited stockAtmos
Atmos pelletilo with a compact design for efficient pellet storage
Normal priceAway 410,45 €Basic priceNot availableIn stockA.B.S.
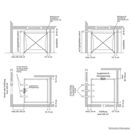
Pelletilo flat floor including frame
Normal priceAway 2.928,16 €Basic priceNot availableIn stockA.B.S.
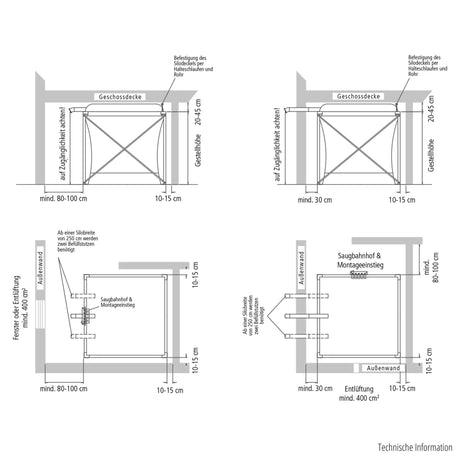
Pelletilo for outside including frame
Normal priceAway 7.648,84 €Basic priceNot availableIn stockA.B.S.
A.B.S. Flexilo Standard pellet silo
Normal priceAway 2.302,80 €Basic priceNot availableIn stock