Téléphone +49(0)39262 878720

E-mail: gemashop@gema-net.de

WhatsApp : +49(0)17660429928

  • expédition rapide

  • Aide et conseils gratuits

  • Retours sans tracas

  • Ouvert 7j/7

Anhaltinerring 17, 39439 Güsten

Ouvert du lundi au jeudi de 7h à 17h ; vendredi 7h-16h ; Samedi 9h-12h

A.B.S.  |  UGS : HP12/16G

A.B.S. Silo à granulés Flexilo Standard

Nom: A.B.S. Silo- und Förderanlagen GmbH

Adresse: Industriepark 100, 74706 Osterburken

Email: info@abs-silos.de

Site Web: https://abs-silos.de/

Fabricant Européen: Oui

Prix ​​normal 2.302,80 €
inkl. MwSt. Kostenloser Versand innerhalb Deutschland

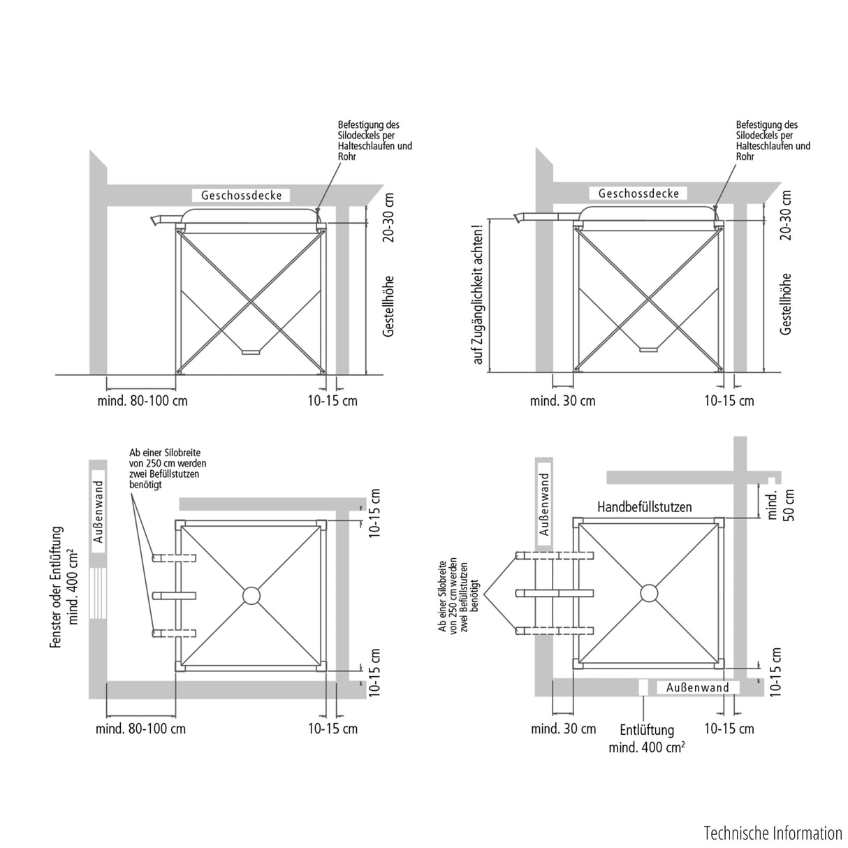
Dimensions du cadre
Hauteur de la pièce

Livraison et expédition

Le délai de traitement est généralement de 1 jour ouvrable. Le délai de livraison des marchandises emballées est de 1 à 3 jours ouvrables. Pour les marchandises expédiées, le délai de livraison est de 3 à 5 jours ouvrables. Les délais de livraison en dehors de l'Allemagne sont différents.

Description

A.B.S. Silo à granulés Flexilo Standard – Le classique parmi les silos à granulés en bois

autres dimensions sur mesure sur demande- vers le formulaire de contact

Description du produit

Le A.B.S. Le silo à pellets Flexilo Standard est un silo polyvalent éprouvé au design classique avec une sortie en tissu conique. Cette conception garantit une décharge sûre et uniforme des pellets et est idéale pour chauffer votre maison de manière fiable même pendant la saison froide.

Le type silo peut être combiné avec presque toutes les unités de prélèvement et, grâce à sa conception robuste et simple, offre une solution durable pour les applications privées et commerciales.

Données techniques

Le Flexilo Standard est disponible dans des tailles allant jusqu'à un remplissage allant jusqu'à 9,4 t. La version dispose d'un bec conique en tissu, est compatible avec toutes les chaudières à pellets et se caractérise par une conception facile à entretenir. Le délai de livraison habituel est de 2 à 3 semaines.

Avantages

La conception classique combinée à la sortie conique en tissu assure une décharge sûre des pellets et minimise les pontages. Grâce à la grande compatibilité avec différentes unités de prélèvement, le système peut être utilisé de manière très flexible.

D'autres avantages incluent le montage rapide, les faibles coûts de maintenance et la possibilité de connecter plusieurs silos en cascade pour couvrir des plages de performances plus larges.

Assemblage et installation

Le montage du Flexilo Standard est simple et permet de gagner du temps, de sorte que le type de silo est rapidement prêt à fonctionner. L'extraction et la sortie peuvent être raccordées à presque toutes les chaudières, ce qui facilite l'intégration dans les systèmes de chauffage existants.

Pour un fonctionnement optimal et une longue durée de vie, nous recommandons une installation professionnelle par un technicien expérimenté, en particulier si plusieurs silos doivent être connectés en solution en cascade.

Entretien et soins

Le Flexilo est conçu pour être facile à entretenir et nécessite peu d'entretien. Des inspections visuelles régulières et le fait d'éviter l'humidité dans la salle de stockage prolongent la durée de vie du système et garantissent une décharge fiable.

En cas de contamination ou pour vérifier le mécanisme de décharge, une brève inspection est généralement suffisante ; Les pièces de rechange et le service sont disponibles rapidement si nécessaire.

Domaines d'application

Le silo à granulés convient aux maisons unifamiliales, aux immeubles d'habitation, aux propriétés commerciales, aux entreprises agricoles et aux installations municipales. Grâce à la flexibilité en termes de taille et d'options de connexion, il peut être utilisé dans de nombreuses situations de chauffage.

Contenu de la livraison & Service

La livraison comprend le silo en tissu avec sortie conique et les instructions de montage ; Selon la commande, des unités de prélèvement supplémentaires ou des spirales pour les solutions en cascade sont disponibles séparément. Le délai de livraison est généralement de 2 à 3 semaines.

Le support constructeur et revendeur fournit des conseils sur la sélection, la planification et le montage ainsi que la fourniture de pièces de rechange si nécessaire.

Recommandation

Le A.B.S. Le silo à pellets Flexilo Standard est le choix idéal si vous recherchez une solution éprouvée, flexible et rentable pour le stockage de pellets. Pour des exigences de performance plus élevées, la combinaison de plusieurs silos en cascade avec une spirale continue est recommandée.

Contactez votre revendeur spécialisé pour une offre individuelle et des conseils sur la bonne taille et le raccordement optimal à votre chaudière à granulés.

Contenu de la livraison

  • Sac silo avec chicane cousue et ouverture de visite (buse de remplissage manuel)
  • Cadre en acier galvanisé comme système enfichable avec matériel de montage
  • Système de remplissage adapté (latéral en standard)
  • Structure de maintien pour couvercle de silo (tuyau ½” à prévoir sur place)
  • Instructions de montage
  • Sans unité de dépose

Paiement et sécurité

Options de paiement

  • American Express
  • Apple Pay
  • Bancontact
  • BLIK
  • EPS
  • Google Pay
  • iDEAL
  • Klarna
  • Maestro
  • Mastercard
  • MobilePay
  • PayPal
  • Przelewy24
  • Shop Pay
  • Union Pay
  • Visa

Vos informations de paiement sont traitées de manière sécurisée. Nous ne stockons pas les informations de carte de crédit et n'avons pas accès aux informations de votre carte de crédit.

Contactez-nous

5
reviews
See all reviews